Строительство домов в Сургуте,
работаем без предоплаты!

Оплата берется только за выполненный этап работ.
Не включая материалы.
Посмотреть каталог домов

О компании

Компания Home Строй работает с 2013 года. Собственная ресурсная база позволяет предоставлять полный цикл строительных услуг от разработки проекта до внутренней отделки дома. Основное направление - это строительство быстровозводимых каркасных жилых домов из блоков, кирпича и дерева. Наш портфель на сегодня это десятки реализованных проектов, в том числе 56 построенных жилых домов, которое уже сданы в эксплуатацию.

За это время мы начали деятельность в Сургуте, Москве, Нижневартовске Тюмени, ХМАО, Янао. Офисы компании открыты в Тюмени, Москве, Нижневартовске, Ханты Мансийске, Новом Уренгое, Сургуте.

Мы работаем в соответствии с Федеральным законодательством. Привлекаем для строительства мощные инвестиции. Сотрудничаем с Россельхозбанком и Сбербанком, предоставляя программы ипотечного кредитования на строительство и покупку готового жилья.

Работа с клиентом происходит на основании типового договора, в котором указана смета, сроки оплаты и выполнения работы, а также наша ответственность и гарантия. Срок действия договора 5 лет.

Наши специалисты помогают с поиском земельного участка для строительства объекта, или предлагают из имеющихся на балансе компании. Строим также на участках клиента.

Для тех, кто ограничен во времени, мы предлагаем уже построенные и сданные в эксплуатацию дома.

 

Несколько слов от директора

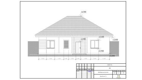
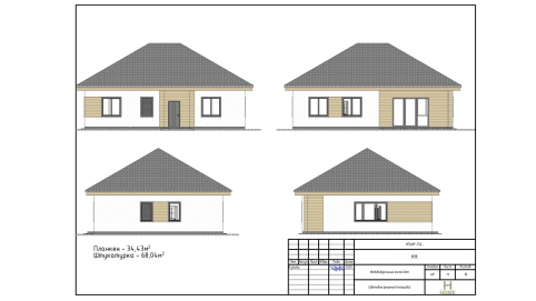
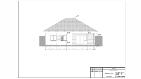
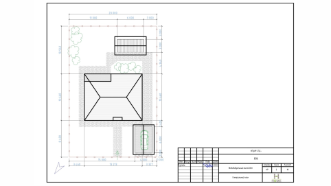
Наши проекты

Площадь: 285.05 м2 (23x12) Цена: 11 516 020 руб.
Площадь: 366.87 м2 (27x22) Цена: 15 004 983 руб.
Площадь: 231.48 м2 (17x15) Цена: 9 467 532 руб.
Площадь: 202.8 м2 (10x15) Цена: 8 193 120 руб.
Площадь: 295.52 м2 (19x11) Цена: 12 086 768 руб.
Площадь: 136 м2 (15x14) Цена: 5 698 400 руб.

Цены на строительство дома

Наименование работ Стоимость Объем, м2 Итого
1 Дом из кирпича от 51 180 р/м2
0 р.
2 Дом из бруса от 41 980 р/м2
0 р.
3 Дом из бревна от 43 130 р/м2
0 р.
4 Дом оцилиндрованного бревна от 43 700 р/м2
0 р.
5 Дом из клееного бруса от 63 830 р/м2
0 р.
6 Дом из профилированного бруса от 44 280 р/м2
0 р.
7 Дом из двойного бруса от 40 830 р/м2
0 р.
8 Дом из арболитовых блоков от 46 000 р/м2
0 р.
9 Дом из газобетонных блоков от 47 150 р/м2
0 р.
10 Дом из газосиликатных блоков от 47 730 р/м2
0 р.
11 Дом из керамзитобетонных блоков от 46 580 р/м2
0 р.
12 Дом из керамических блоков от 50 600 р/м2
0 р.
13 Дом из теплоблоков от 44 280 р/м2
0 р.
14 Дом из пеноблоков от 47 730 р/м2
0 р.
15 Дом из нем. тех. от 44 850 р/м2
0 р.
16 Дом из канад. тех. от 43 130 р/м2
0 р.
17 Дом из SIP панелей от 45 430 р/м2
0 р.
Примерный расчет стоимости: 0 р.
*Для точного расчета стоимости оставьте заявку,
мы совместно подберем проект и составим открытую смету.

О технологиях строительства

Проектирование дома

Первый шаг при строительстве дома – это разработка проектно-технической документации. Грамотно составленный проект в дальнейшем даст возможность избежать дополнительных расходов, а также поможет при строительстве соблюсти все нормы безопасности и создать максимально комфортные условия для жизни. Проектирование до начала строительных работ позволяет получить все технические решения – дизайн фасадов, теплоизоляционные характеристики, этажность дома и внутреннюю планировку дома.

Разработка проектной документации – это задача для настоящих профессионалов. Проектирование домов в Сургуте должно проводиться в соответствии с требованиями нормативно-технической документации. Поэтому перед началом стройки стоит обратиться за помощью в нашу компанию.

Проект позволяет контролировать расход материалов и средств, учитывает нагрузки на несущие элементы, определяет наличие или отсутствие отдельных элементов и конструкций. Без полноценного проекта невозможно ввести готовое строение в эксплуатацию и как следствие невозможно оформить право собственности.

Компания Home Строй проводит геологические изыскания. Если на данном участке такие работы выполнены ранее, то дополнительная оплата не потребуется.

Готовый проект для строительства дома состоит из:

  • архитектурная часть;
  • конструктивная часть;
  • инженерные сети.

Узнайте стоимость вашего дома Подберем проект и составим смету в течении 24 часов!